VILLA MODERNA CON GIARDINO

675.000 €
310 m²
Superficie
7
Locali
5
Camere
3
Bagni
1
Box
in vendita
villa
Casnate con Bernate [Casnate]
Descrizione
PERCHÉ VALUTARE L’ACQUISTO?
• Classe energetica;
• Ampia metratura interna ben distribuita;
• Giardino privato di 450 mq;
• Vista aperta su campi e montagne;
• Finiture ricercate: camini, travi e pietra a vista, idromassaggio.

• Nel cuore di Casnate con Bernate, in posizione riservata ma comodissima con i principali servizi (quali scuole, poste, negozi, farmacia e supermercati) e ai collegamenti per la città di Como, Base Immobiliare propone in vendita villa di pregio con giardino privato e box doppio.
La villa si trova all’interno di un’area residenziale immersa nel verde e con una splendida vista aperta sul paesaggio circostante. La posizione è molto tranquilla, perfetta per chi desidera privacy e silenzio senza rinunciare alla comodità dei servizi e ai principali collegamenti.

• L’abitazione si sviluppa su quattro livelli interni principali, su mezzi piani sfalsati che creano un tocco di originalità e praticità, per una superficie abitativa interna complessiva di circa 220 mq e di un piano interrato totale, comprensivo di autorimessa, di 100 mq.
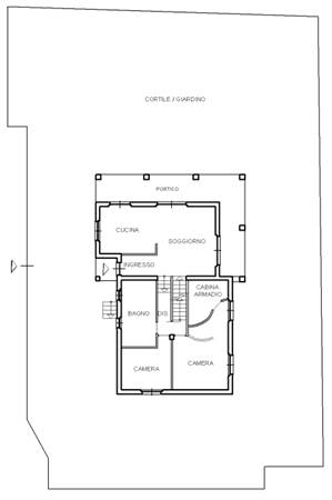
Al piano terra si sviluppa la prima parte della zona giorno: l’ingresso conduce ad una pratica sala da pranzo con ampia cucina laterale a vista per un totale di circa 40mq. Da qui si può uscire direttamente sul giardino e sul porticato laterale, da poter sfruttare nella bella stagione per mangiare o rilassarsi in presenza di parenti e amici, impreziosito dalla splendida vista aperta sui campi e sulle montagne.

• Il piano rialzato è dedicato alla zona notte padronale, di circa 50 mq, ospitante una camera matrimoniale con cabina armadio e una seconda camera singola. Il bagno principale si distingue per il forte impatto estetico;
Salendo al piano sfalsato si accede al vero locale soggiorno, disteso su 40 mq, arricchito da un camino e dalla pavimentazione in parquet, oltre che alle finestre in esposizione lato ovest.
All’ultimo piano troviamo la mansarda di 58 mq composta da tre comodissime camere da letto. Sullo stesso livello è presente un bagno finestrato completo di box doccia, vasca e sanitari sospesi.

• L'abitazione si completa e caratterizza al piano seminterrato di circa 100mq complessivi, offrendo ambienti molto funzionali: un bagno completo con doccia, un locale caldaia/lavanderia e una taverna con camino di ben 65mq calpestabili con sfogo sempre lato ovest su un intimo giardino.
Collegato internamente vi è anche il box doppio in lunghezza con basculante motorizzata.

• La casa è circondata da un giardino privato di 450 mq che avvolge la proprietà su quattro lati, creando zone diverse e ben sfruttabili, soprattutto lato ovest in esposizione sul piano terra che affaccia verso una totale apertura godendosi l'intimità del portico, da poter sfruttare soprattutto nella bella stagione.

• La costruzione risale al periodo 1996-1999, tenuta in maniera impeccabile.
L’abitazione è dotata pavimentazione in parquet, serramenti in PVC e doppio vetro e persiane in alluminio, entrambi sostituiti nel 2022, di allarme volumetrico con sensori anche all’esterno, videocitofono, riscaldamento autonomo a radiatori e pannelli solari installati nel 2015.

Consigliamo la visione di questo immobile a famiglie numerose, a chi necessita di più spazi per coniugare la vita familiare ed il lavoro, sfruttando la disponibilità di più camere da letto; ma soprattutto agli amanti dell'indipendenza in zona centralissima senza isolarsi, in uno dei Comuni più richiesti della provincia di Como.

NB."Per garantire la privacy, l'indirizzo citato può essere puramente indicativo. Il seguente annuncio ha il solo scopo informativo/illustrativo e non è da considerarsi parte contrattuale."

• Chiamaci al 031/880005 o tramite Whatsapp al numero 351/8818267 e ti forniremo maggiori informazioni per fissare un appuntamento in compagnia del nostro consulente.

• STAI PENSANDO DI VENDERE O AFFITTARE?
Quanto vale la tua casa? La CONSULENZA BASE IMMOBILIARE comprende:
- una stima reale ed aggiornata del tuo immobile con la griglia completa di analisi mercato
- un colloquio senza impegno con il nostro consulente specifico del territorio
- l'assistenza del consulente finanziario per l'ottenimento di un mutuo
- il supporto di un notaio per gli aspetti relativi ad ogni fase della compravendita;
- controllo urbanistico e catastale e certificato energetico redatti dal nostro Geometra.

Caratteristiche principali
Codice:
V000737
Città:
Casnate con Bernate (Casnate)
Categoria:
Villa
Locali:
7
Camere:
5
Bagni:
3
Mq:
310
Box:
1
Mq Box:
30
Mq Giardino:
450
Anno:
1998
Anno ristrutturazione:
2016
Classe energetica:
D
136,35
Stato Immobile:
Buono
Grado:
Signorile
Posizione:
Centro
Panorama:
Vista Aperta
Orientamento:
Nord Ovest Sud Est
Lati Liberi:
4
Giardino:
Privato
Arredi:
Possibilità
Tipo Soggiorno:
Doppio
Tipo Cucina:
Abitabile
Riscaldamento:
Autonomo
Tipo Riscaldam.:
Caldaia a Condensazione
Tipo Impianto:
Radiatori
Acqua Calda:
Autonoma
Raffrescamento:
Split
Infissi:
PVC Doppio Vetro
Serramenti:
Ottimo
Persiana:
Persiana Metallo
Pavim. Giorno:
Parquet
Pavim. Notte:
Parquet
Pavim. Cucina:
Gres Porcellanato
Isolamento:
Presente
Isolamento termico:
Isolamento tetto/sottotetto
Isolamento acustico:
Serramenti
Destinato a residenti:
Si
Accessori
Antifurto
Aria Condizionata
Camino
Doppi Vetri
Doppio ingresso
ImpiantoFotovoltaico
Pannelli Solari
Porta Blindata
Planimetrie
Base Fino Mornasco
Via Garibaldi, 73
22073 Fino Mornasco CO
Richiedi informazioni
Cookie preference